WHAT WE DO
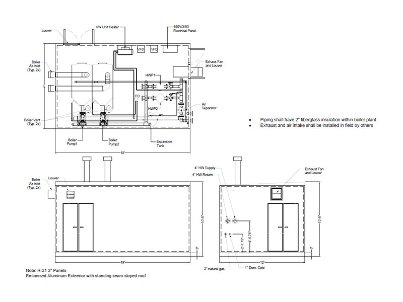
Custom Reps provides HVAC Engineering Support for Custom AHUs, ERVs, ERUs, Boiler Plants, Chiller Plants, Heat Transfer Packages, Pump Packages. We provide 3D modeling in Revit, CAD, and Inventor files for our Engineer Partners. Let us help you today!



























